Entwurfsplanung
Friedhof Weidenbach
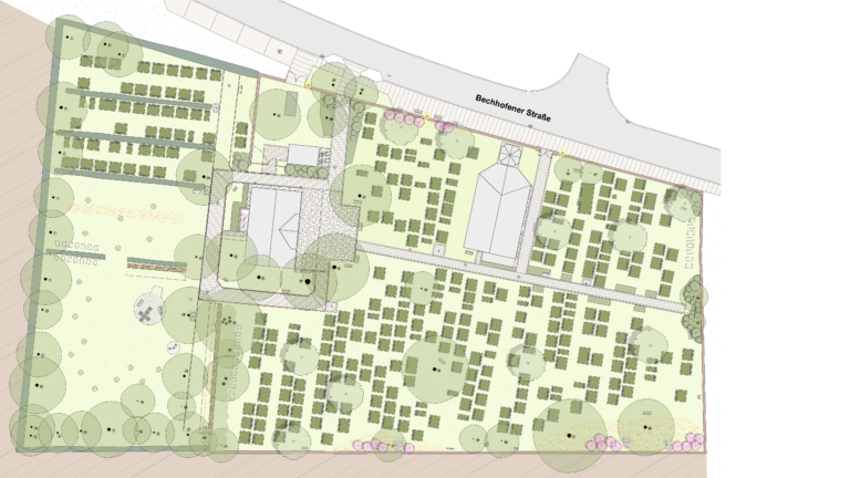
Ökologische Sanierung
Sanierung und ökologische Aufwertung eines in die Jahre gekommenen Friedhofs in Mittelfranken.
Erneuerung von Wege- und Platzflächen mit wasserdurchlässigen Belägen und stufenloser Erschließung. Aufwertung mit Blumenwiesen, Trockenmauern und Staudenflächen. Ergänzung der Grabfelder mit zahlreichen Blütenbäumen, sowie Eingrünung mit heimischen Sträuchern.
Standort:
Weidenbach
Auftraggeber:
Evang.-Luth. Kirchengemeinde Weidenbach- Triesdorf
Fläche:
6000m²
Projektlaufzeit:
2020 - 2024
Leistungsphasen:
1-8
Ausführende:
Firma Zäh, Wassertrüdingen