Entwurfsplanung
Gleisharfe WA 4
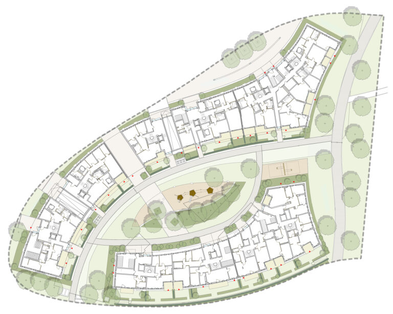
Neubau einer Wohnanlage in Neuaubing
Die Gestaltung der Freiflächen für das Quartier Gleisharfe WA4 reagiert mit seinem linsenförmigen Innenhof auf den städtebaulichen Entwurf mit seinen markanten Gebäudeformen.
Standort:
Mathilde-Berghofer-Weichner-Straße, München
Auftraggeber:
Demos Wohnbau GmbH
Fläche:
5400m²
Projektlaufzeit:
2019 - 2022
Leistungsphasen:
1-7
Architekt/in:
West Architekten, München
Ausführende:
Firma Bert Peine, Gilching